Quick Info

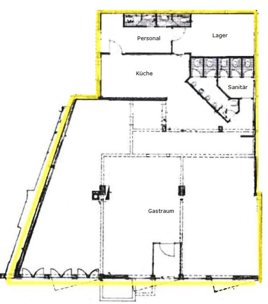
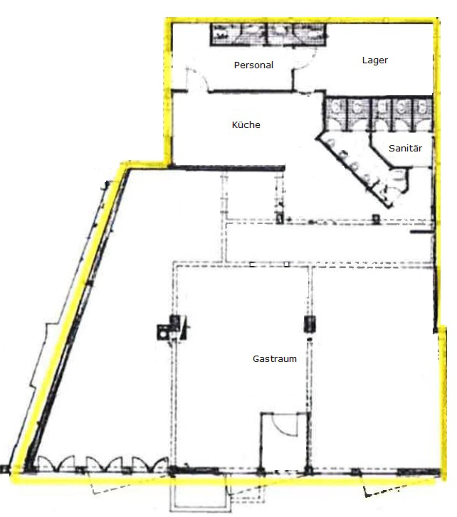
Die Gastronomieeinheit befindet sich im Erdgeschoss eines gepflegten Mehrfamilienhauses. Aufgrund des aktuellen Zustands wird ein kreativer Mieter gesucht, welcher mit Herzblut der Mietfläche neues Leben verleiht. Der Ausbau erfolgt in Abstimmung mit dem Vermieter. Je nach Höhe der Investitionskosten kann es zu einer Anpassung des Mietpreises / der Festlaufzeit kommen.

Tiefgaragenstellplätze stehen zur Anmietung zur Verfügung:
Duplex-Parker - 50,00 € / Monat
zwei benachbarte Duplex-Parker - 80,00 € / Monat
Wichtig - es handelt sich um keine öffentliche Tiefgarage.

  • Kaltmiete: 4.060,32 €
  • Betriebskosten: 937,41 €
  • Heizkosten: 650,00 €
  • Gesamtmiete: 5.647,73 €
  • Kaution: 16.943,19 €
  • Baujahr: 1985
  • Bezugstermin: nach Vereinbarung
  • Zustand: Nach_vereinbarung
  • Energieausweistyp: Verbrauch
  • Heizungsart: Zentral
  • Energiekennwert: 83kWh/(m²*a)
  • Energieträger: Fernwärme
  • Effizienzklasse: C
  • Objekt-Nr: 1500/2703/1