Quick Info

Objektreferenz: 1040/1110/133

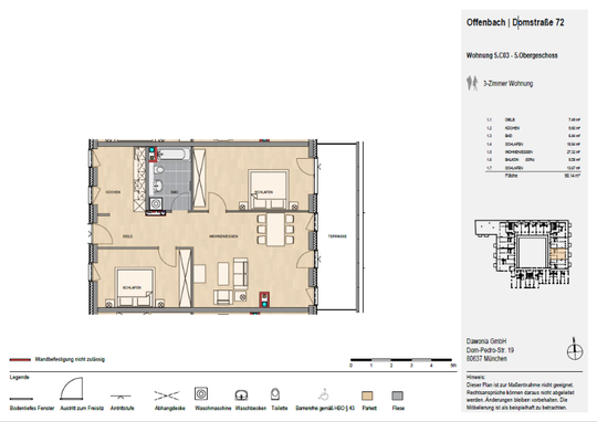
Die schöne 3-Zimmer-Wohnung befindet sich im 5. Obergeschoss eines gepflegten Mehrfamilienhauses.

  • Wohnfläche ca. : 90 m2
  • Kaltmiete: 1.448,55 €
  • Betriebskosten: 196,00 €
  • Heizkosten: 293,00 €
  • Gesamtmiete: 1.937,55 €
  • Kaution: 4.345,65 €
  • Baujahr: 2020
  • Geschoss: 5
  • Wohnungstyp: Etage
  • Bezugstermin: 15.10.2025
  • Energieausweistyp: Bedarf
  • Heizungsart: Zentral
  • Energiekennwert: 65kWh/(m²*a)
  • Energieträger: Fernwärme
  • Effizienzklasse: B
  • Badezimmer: 1
  • Aufzug
  • TV / Sat /Kabel
  • Anzahl Balkon / Terrasse: 0 / 1
  • Einbauküche
  • Waschmaschinenanschluss
  • Keller: NEIN
  • Rolladen
  • Badewanne
  • Badezimmerfenster
  • Fußboden: PARKETT
  • Objekt-Nr: 1040/1110/133