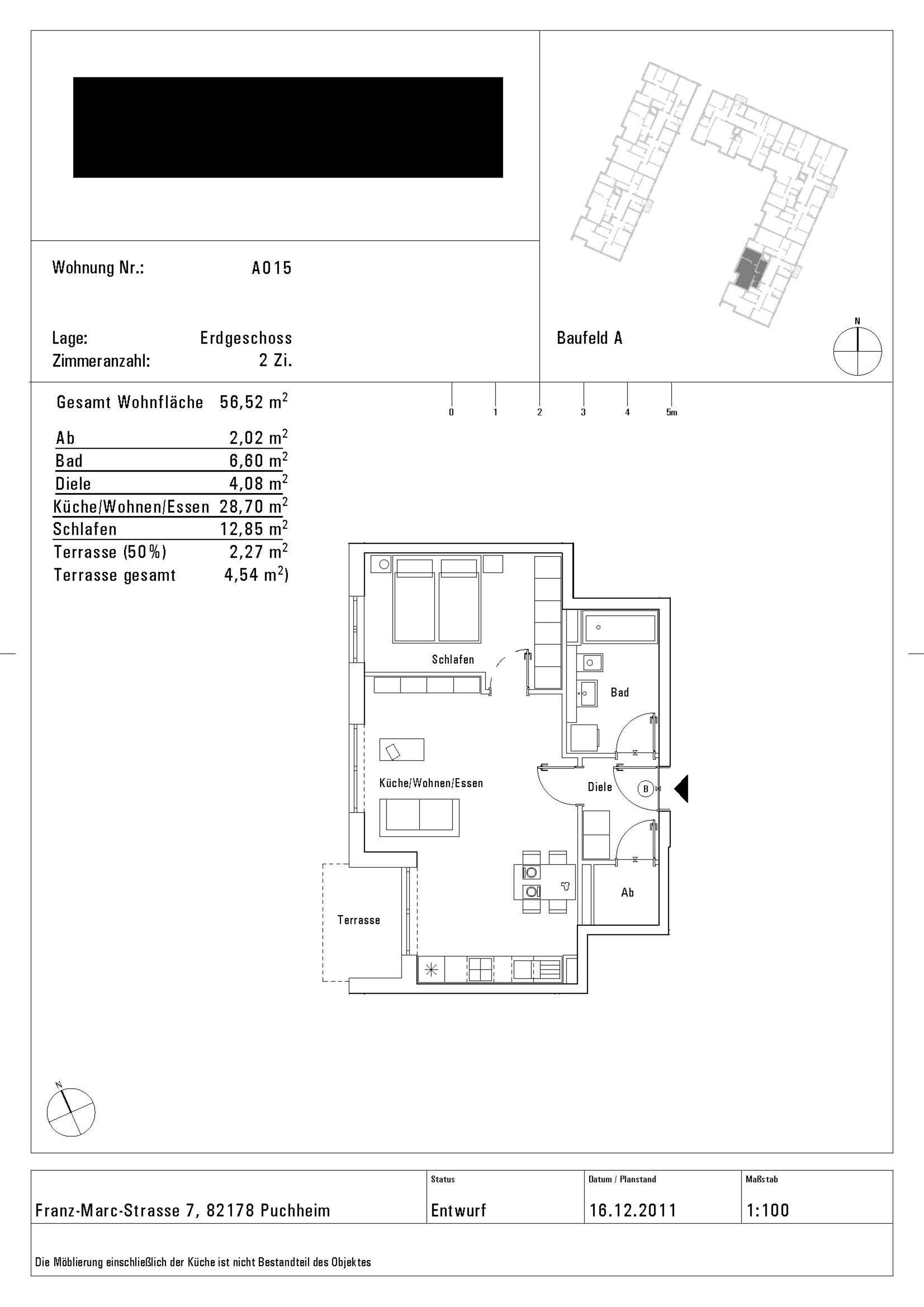
Quick Info

Objektreferenz: 1043/1899/57

  • Wohnfläche ca. : 57 m2
  • Kaltmiete: 959,14 €
  • Betriebskosten: 216,00 €
  • Heizkosten: 125,00 €
  • Gesamtmiete: 1.230,14 €
  • Kaution: 2.877,42 €
  • Baujahr: 2012
  • Wohnungstyp: Etage
  • Bezugstermin: 11.02.2026
  • Energieausweistyp: Bedarf
  • Heizungsart: Zentral
  • Energiekennwert: 61kWh/(m²*a)
  • Energieträger: Fernwärme
  • Effizienzklasse: B
  • Badezimmer: 1
  • Schlafzimmer: 1
  • Abstellraum
  • Anzahl Balkon / Terrasse: 0 / 1
  • Waschmaschinenanschluss
  • Keller: NEIN
  • Rolladen
  • Badewanne
  • Fußboden: PARKETT
  • Objekt-Nr: 1043/1899/57