Quick Info

Objektreferenz: 1040/1110/72

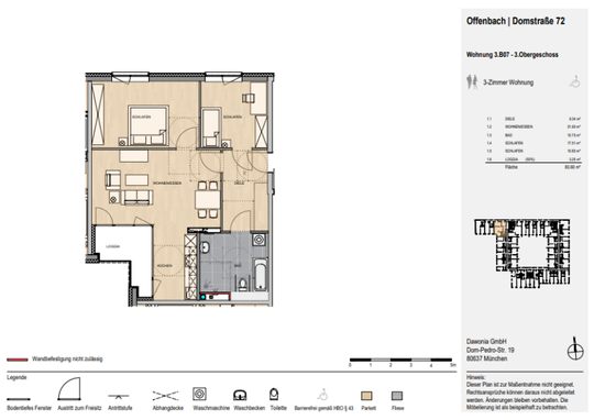
Die schöne 3-Zimmer-Wohnung befindet sich im 3. Obergeschoss eines gepflegten Mehrfamilienhauses.

  • Wohnfläche ca. : 84 m2
  • Kaltmiete: 1.271,56 €
  • Betriebskosten: 168,00 €
  • Heizkosten: 140,00 €
  • Gesamtmiete: 1.579,56 €
  • Kaution: 3.814,68 €
  • Baujahr: 2020
  • Geschoss: 3
  • Wohnungstyp: Etage
  • Bezugstermin: 08.10.2025
  • Energieausweistyp: Bedarf
  • Heizungsart: Zentral
  • Energiekennwert: 65kWh/(m²*a)
  • Energieträger: Fernwärme
  • Effizienzklasse: B
  • Badezimmer: 1
  • Schlafzimmer: 2
  • Aufzug
  • TV / Sat /Kabel
  • Anzahl Balkon / Terrasse: 1 / 0
  • Einbauküche
  • Waschmaschinenanschluss
  • Keller: NEIN
  • Rolladen
  • Dusche
  • Badewanne
  • Badezimmerfenster
  • Fußboden: PARKETT
  • Rollstuhlgerecht
  • Objekt-Nr: 1040/1110/72