Quick Info

Objektreferenz: 1040/1110/34

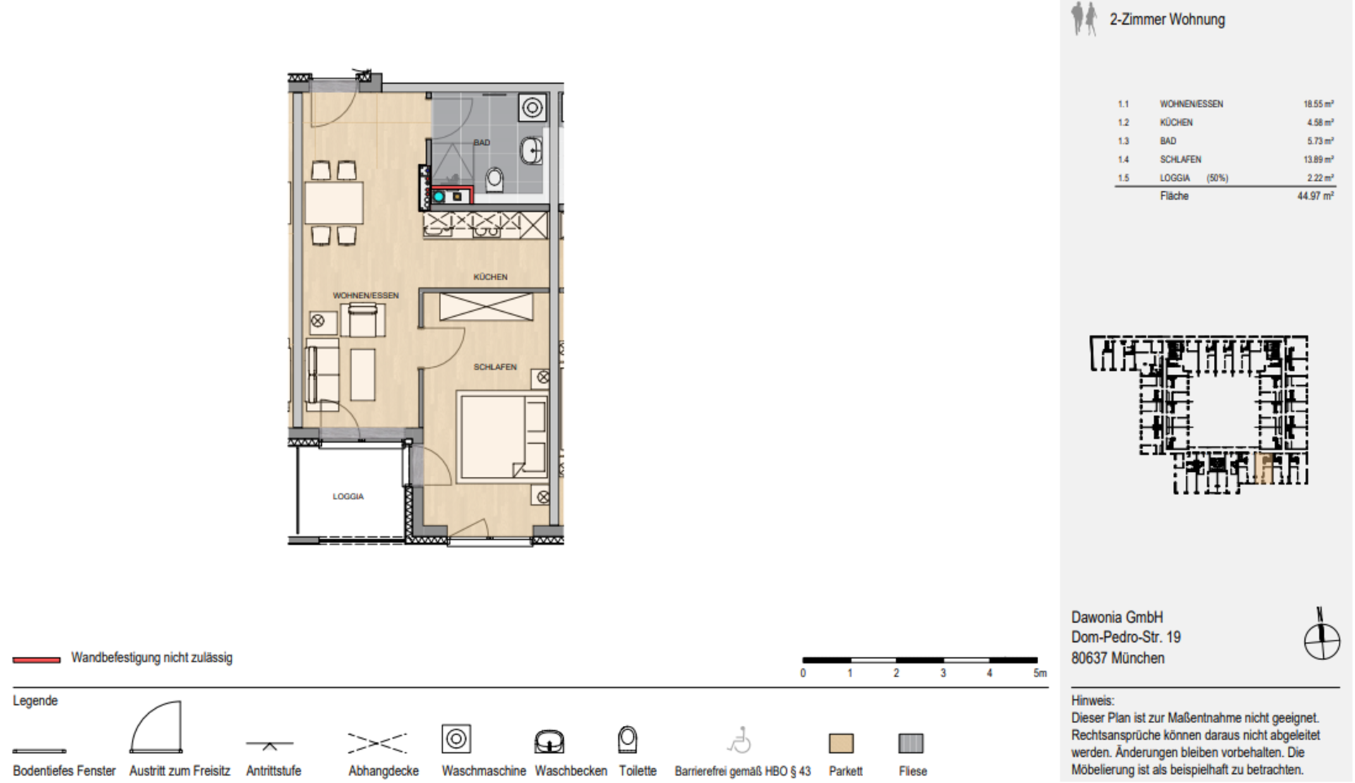
Die schöne 2-Zimmer-Wohnung befindet sich im 2. Obergeschoss eines gepflegten Mehrfamilienhauses.

  • Wohnfläche ca. : 45 m2
  • Kaltmiete: 748,75 €
  • Betriebskosten: 101,00 €
  • Heizkosten: 107,00 €
  • Gesamtmiete: 956,75 €
  • Kaution: 2.246,25 €
  • Baujahr: 2020
  • Geschoss: 2
  • Wohnungstyp: Etage
  • Bezugstermin: 01.02.2026
  • Energieausweistyp: Bedarf
  • Heizungsart: Zentral
  • Energiekennwert: 65kWh/(m²*a)
  • Energieträger: Fernwärme
  • Effizienzklasse: B
  • Badezimmer: 1
  • Schlafzimmer: 1
  • Aufzug
  • TV / Sat /Kabel
  • Einbauküche
  • Waschmaschinenanschluss
  • Keller: NEIN
  • Rolladen
  • Dusche
  • Fußboden: PARKETT
  • Objekt-Nr: 1040/1110/34