Quick Info

Objektreferenz: 1043/2543/3

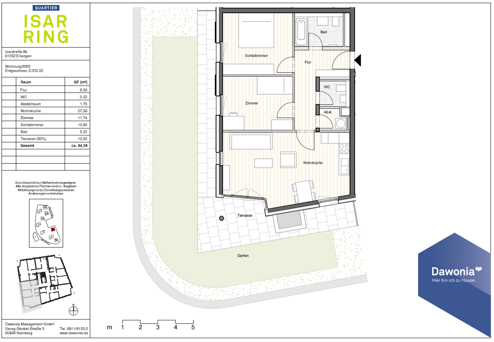
Die wunderschöne 3-Zimmer-Wohnung befindet sich im Erdgeschoss eines im Jahr 2022 errichteten Mehrfamilienhauses in einer gepflegten Wohnanlage.

Auf Wunsch kann ein Stellplatz im Parkhaus neben dem Haus für zusätzlich 50 € mtl. angemietet werden.

  • Wohnfläche ca. : 85 m2
  • Kaltmiete: 1.048,00 €
  • Betriebskosten: 115,00 €
  • Heizkosten: 137,00 €
  • Gesamtmiete: 1.300,00 €
  • Kaution: 3.144,00 €
  • Baujahr: 2022
  • Wohnungstyp: Terrassen
  • Bezugstermin: 05.01.2026
  • Zustand: Gepflegt
  • Energieausweistyp: Bedarf
  • Heizungsart: Zentral
  • Energiekennwert: 62kWh/(m²*a)
  • Energieträger: Fernwärme
  • Effizienzklasse: B
  • Badezimmer: 1
  • Schlafzimmer: 2
  • Aufzug
  • Garten
  • Abstellraum
  • Anzahl Balkon / Terrasse: 0 / 1
  • Einbauküche
  • Waschmaschinenanschluss
  • Keller
  • Gegensprechanlage: VIDEO
  • Badewanne
  • Gaestewc
  • Fußboden: PARKETT
  • Stellplatzart: Parkhaus
  • Parkplätze: 1
  • Objekt-Nr: 1043/2543/3