Quick Info

Objektreferenz: 1040/1110/129

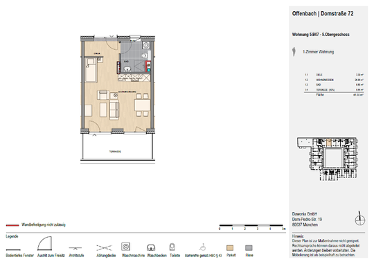
Die schöne 1-Zimmer-Wohnung befindet sich im 5. Obergeschoss eines gepflegten Mehrfamilienhauses.

  • Wohnfläche ca. : 41 m2
  • Kaltmiete: 754,14 €
  • Betriebskosten: 93,00 €
  • Heizkosten: 120,00 €
  • Gesamtmiete: 967,14 €
  • Kaution: 2.262,42 €
  • Baujahr: 2020
  • Geschoss: 5
  • Wohnungstyp: Dachgeschoss
  • Bezugstermin: 01.04.2026
  • Energieausweistyp: Bedarf
  • Heizungsart: Zentral
  • Energiekennwert: 65kWh/(m²*a)
  • Energieträger: Fernwärme
  • Effizienzklasse: B
  • Badezimmer: 1
  • Aufzug
  • TV / Sat /Kabel
  • Anzahl Balkon / Terrasse: 0 / 1
  • Einbauküche
  • Waschmaschinenanschluss
  • Keller: NEIN
  • Rolladen
  • Dusche
  • Objekt-Nr: 1040/1110/129