Quick Info

Der moderne Wohn- und Gewerbekomplex besteht aus 142 Wohnungen und 5 Gewerbeeinheiten.

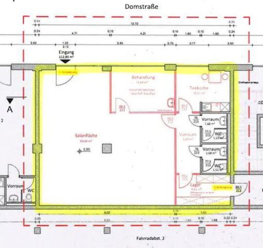
Die verfügbare Fläche befindet sich im Erdgeschoss und bietet Ihnen auf ca. 118 m² genügend Platz für Ihren Kosmetiksalon.

  • Kaltmiete: 1.841,51 €
  • Betriebskosten: 324,66 €
  • Heizkosten: 153,00 €
  • Gesamtmiete: 2.319,17 €
  • Kaution: 8.279,46 €
  • Baujahr: 2020
  • Bezugstermin: 01.09.2026
  • Zustand: Neuwertig
  • Energieausweistyp: Bedarf
  • Heizungsart: Zentral
  • Energiekennwert: 65kWh/(m²*a)
  • Energieträger: Fernwärme
  • Effizienzklasse: B
  • Fußboden: FLIESEN
  • Barrierefrei
  • Objekt-Nr: 1040/1110/145