Quick Info

Objektreferenz: 1043/2542/56

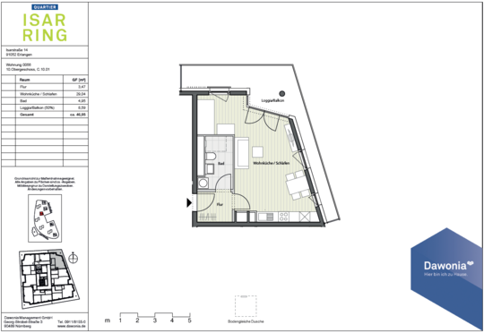
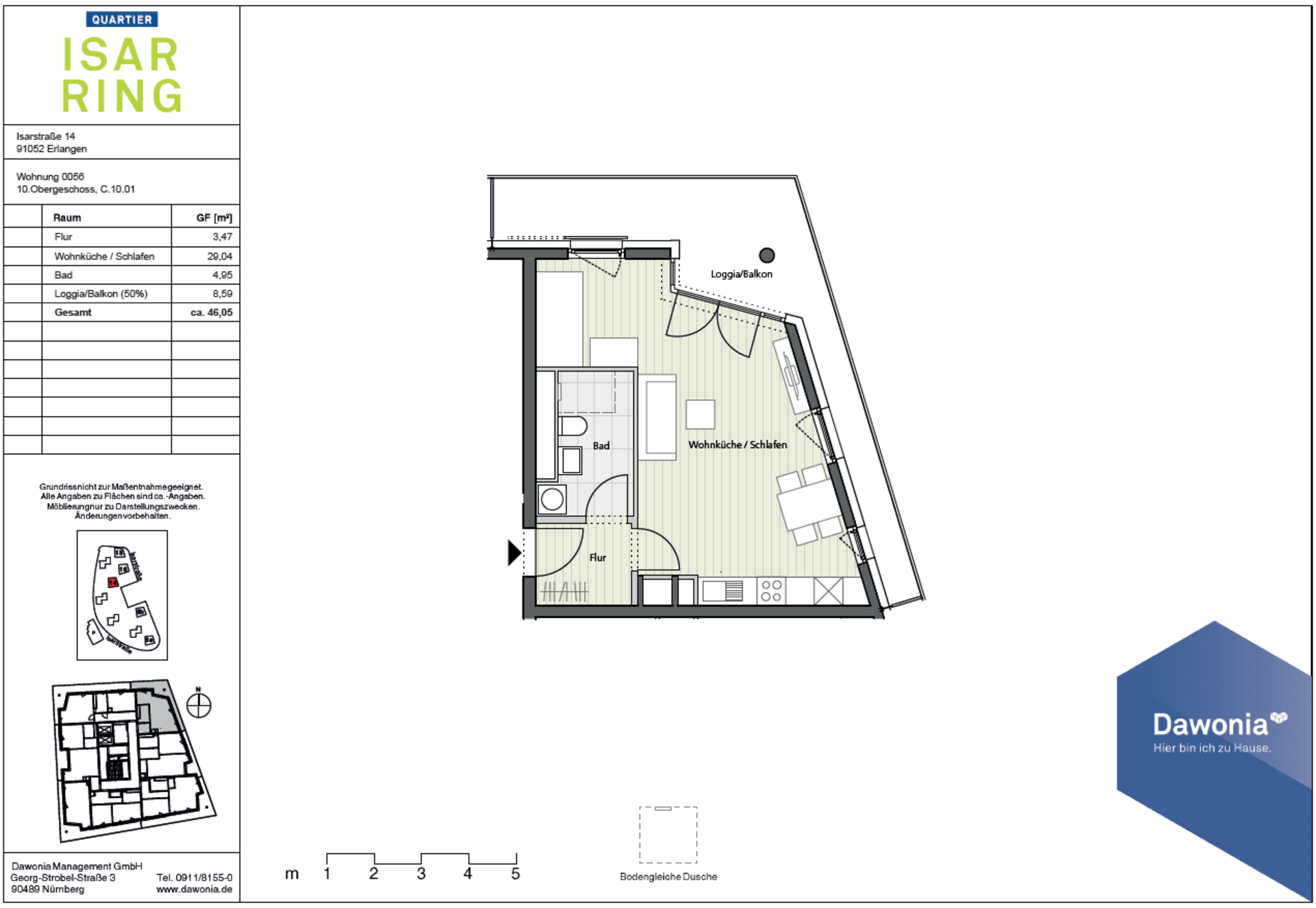
Die moderne 1-Zimmer-Wohnung befindet sich im 10. Obergeschoss eines Neubaus (Fertigstellung Juli 2024) in einer gepflegten Wohnanlage.

Auf Wunsch kann ein Stellplatz in der Tiefgarage unter dem Haus für zusätzlich 65 € mtl. angemietet werden.

  • Wohnfläche ca. : 46 m2
  • Kaltmiete: 714,00 €
  • Betriebskosten: 83,00 €
  • Heizkosten: 69,00 €
  • Gesamtmiete: 866,00 €
  • Kaution: 2.142,00 €
  • Baujahr: 2024
  • Geschoss: 10
  • Wohnungstyp: Etage
  • Bezugstermin: 01.10.2025
  • Zustand: Gepflegt
  • Energieausweistyp: Bedarf
  • Heizungsart: Zentral
  • Energiekennwert: 56kWh/(m²*a)
  • Energieträger: Fernwärme
  • Effizienzklasse: B
  • Badezimmer: 1
  • Schlafzimmer: 1
  • Aufzug
  • Fahrradraum
  • Anzahl Balkon / Terrasse: 1 / 0
  • Einbauküche
  • Waschmaschinenanschluss
  • Keller
  • Gegensprechanlage: VIDEO
  • Dusche
  • Fußboden: PARKETT
  • Stellplatzart: Tiefgarage
  • Parkplätze: 1
  • Objekt-Nr: 1043/2542/56