Quick Info

Objektreferenz: 1040/1110/80

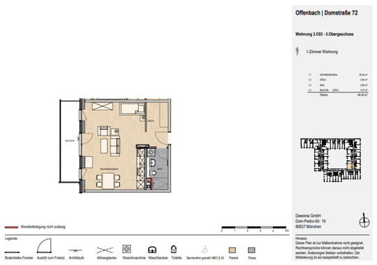
Wir vermieten eine 1-Zimmer-Wohnung mit Einbauküche und Balkon im 3. Stock im Quartier Sophie La Roche. Der schön gestaltete Innenhof ist angenehm begrünt und verfügt über Sitzgelegenheiten.

  • Wohnfläche ca. : 48 m2
  • Kaltmiete: 813,37 €
  • Betriebskosten: 93,00 €
  • Heizkosten: 124,00 €
  • Gesamtmiete: 1.030,37 €
  • Kaution: 2.440,11 €
  • Baujahr: 2020
  • Geschoss: 3
  • Wohnungstyp: Etage
  • Bezugstermin: 01.01.2026
  • Energieausweistyp: Bedarf
  • Heizungsart: Zentral
  • Energiekennwert: 65kWh/(m²*a)
  • Energieträger: Fernwärme
  • Effizienzklasse: B
  • Badezimmer: 1
  • Aufzug
  • TV / Sat /Kabel
  • Anzahl Balkon / Terrasse: 1 / 0
  • Einbauküche
  • Waschmaschinenanschluss
  • Keller: NEIN
  • Rolladen
  • Dusche
  • Fußboden: PARKETT
  • Objekt-Nr: 1040/1110/80