Quick Info

Objektreferenz: 1051/2535/199

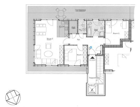
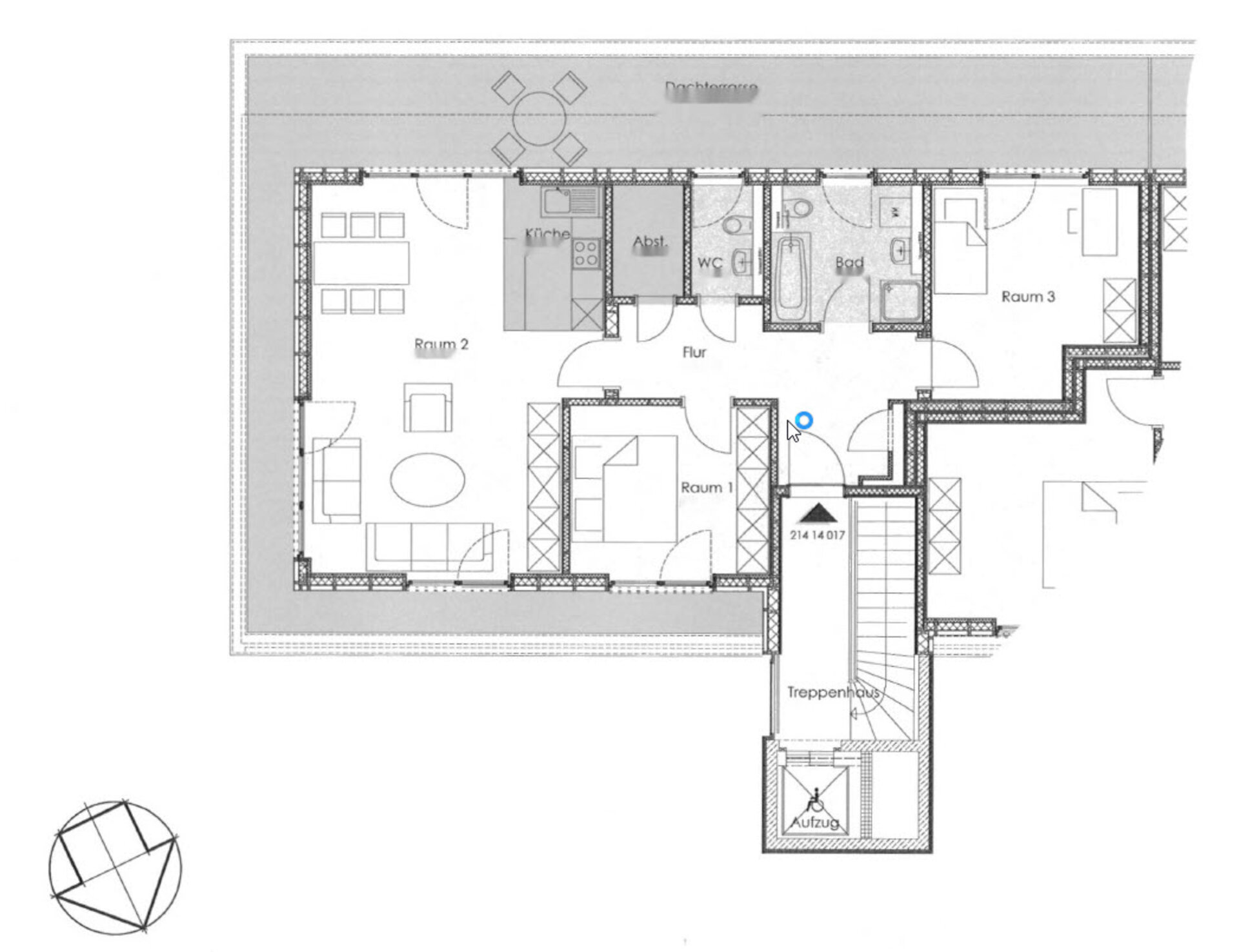
Die großzügige 3-Zimmer-Wohnung mit Terrasse befindet sich im 3. OG eines gepflegten Mehrfamilienhauses in ruhiger Lage.

Im Haus befindet sich ein Aufzug.

Derzeit wird eine Balkonerneuerung geprüft; der Balkon ist bis auf Weiteres nicht nutzbar. Die Anmietung erfolgt zunächst ohne Balkon mit entsprechend angepasstem Mietpreis. Der Mietpreis wird sich bis Fertigstellung des Objektes auf 1026,17 Euro zzgl 150Euro Betriebskosten + 140 Euro Heizkosten belaufen. Insgesamt: 1316,17 Euro

  • Kaltmiete: 1.207,32 €
  • Betriebskosten: 150,00 €
  • Heizkosten: 140,00 €
  • Gesamtmiete: 1.497,32 €
  • Kaution: 3.621,96 €
  • Baujahr: 2006
  • Geschoss: 3
  • Geschossanzahl: 3
  • Wohnungstyp: Etage
  • Bezugstermin: 21.10.2025
  • Zustand: Gepflegt
  • Energieausweistyp: Verbrauch
  • Heizungsart: Zentral
  • Energiekennwert: 105kWh/(m²*a)
  • Energieträger: Fernwärme
  • Effizienzklasse: D
  • Badezimmer: 1
  • Schlafzimmer: 2
  • Aufzug
  • TV / Sat /Kabel
  • Abstellraum
  • Anzahl Balkon / Terrasse: 0 / 1
  • Waschmaschinenanschluss
  • Keller
  • Gegensprechanlage: STANDARD
  • Dusche
  • Badewanne
  • Badezimmerfenster
  • Gaestewc
  • Fußboden: PARKETT
  • Seniorengerecht
  • Barrierefrei
  • Rollstuhlgerecht
  • Objekt-Nr: 1051/2535/199