Quick Info

Objektreferenz: 1040/1110/31

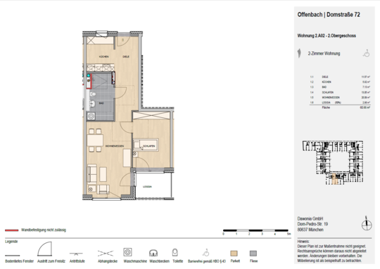
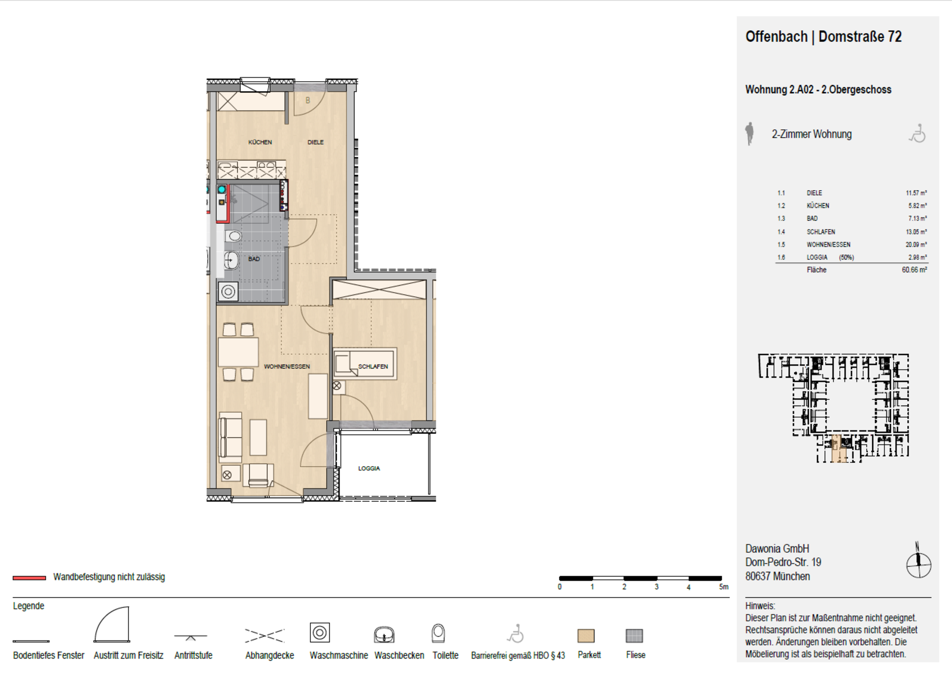
Die schöne 2-Zimmer-Wohnung befindet sich im 2. Obergeschoss eines neuwertigen Mehrfamilienhauses.

  • Wohnfläche ca. : 61 m2
  • Kaltmiete: 937,20 €
  • Betriebskosten: 122,00 €
  • Heizkosten: 79,00 €
  • Gesamtmiete: 1.138,20 €
  • Kaution: 2.811,60 €
  • Baujahr: 2020
  • Geschoss: 2
  • Wohnungstyp: Etage
  • Bezugstermin: 01.06.2026
  • Energieausweistyp: Bedarf
  • Heizungsart: Zentral
  • Energiekennwert: 65kWh/(m²*a)
  • Energieträger: Fernwärme
  • Effizienzklasse: B
  • Badezimmer: 1
  • Schlafzimmer: 1
  • Aufzug
  • Einbauküche
  • Waschmaschinenanschluss
  • Keller
  • Rolladen
  • Gegensprechanlage: VIDEO
  • Dusche
  • Fußboden: PARKETT
  • Objekt-Nr: 1040/1110/31-8b6b3eea-a7dd-4dc3-bdc6-a59b264a9150