Leichte Sprache Zwei Hände in Kommunikationsgeste, symbolisierend Gebärdensprache. Gebärdensprache Search Search
PLATTLINGER STRASSE | REGENSBURG
My Dawonia

Plattlinger Straße

in Regensburg

Quick Info

Regensburg – Plattlinger Straße

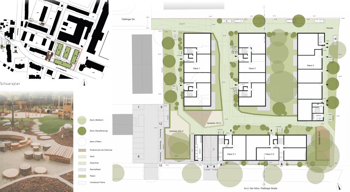
In Regensburg werden drei nicht zu erhaltende Bestandsgebäude abgerissen und durch einen Neubau einer Wohnanlage mit vier Gebäuden und einer Tiefgarage ersetzt.

  • Plattlinger Straße 14, 16, 16 a, 16 b, 18
    93055 Regensburg
    Google Maps

  • 2- bis 4-Zimmer-Wohnungen

  • ca. 6.700 m2  Gesamtwohnfläche

  • 42 Tiefgaragenplätze, 27 oberirdische Stellplätze

  • Baubeginn: Q2 2026

  • 29 barrierefreie Wohnungen,
    davon 8 Seniorenwohnungen

  • Fertigstellungstermin: Q3 2028

  • Wohnanlage entspricht dem energetischen Standard KfW 55 mit Photovoltaikanlage und Wärmepumpe

  • Neubau von vier Gebäuden mit insgesamt 85 Wohnungen

  • neue Freianlagen mit Kinderspielplatz und viel Grün

  • Carsharingangebot und Sharing-Lastenräder

Sie wollen mehr über unsere weiteren Bauprojekte erfahren?

Gerne zeigen wir Ihnen eine aktuelle Übersicht über alle Bauprojekte der Dawonia unter dem folgenden Link.