Quick Info

Der moderne Wohn- und Gewerbekomplex besteht aus 142 Wohnungen und 5 Gewerbeeinheiten.
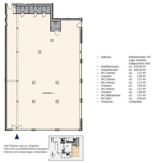
Die verfügbare Fläche befindet sich im Erdgeschoss und bietet Ihnen auf ca. 470 m² genügend Platz für Ihr Business.

  • Kaltmiete: 7.272,90 €
  • Betriebskosten: 1.269,92 €
  • Heizkosten: 612,00 €
  • Gesamtmiete: 9.154,82 €
  • Kaution: 32.682,72 €
  • Baujahr: 2020
  • Bezugstermin: nach Vereinbarung
  • Zustand: Nach_vereinbarung
  • Energieausweistyp: Bedarf
  • Energiekennwert: 65kWh/(m²*a)
  • Energieträger: Fernwärme
  • Effizienzklasse: B
  • Barrierefrei
  • Objekt-Nr: 1040/1110/146_Laden-870dd6ac-b9b9-40f3-8681-5bda1683c1d7