Quick Info

Objektreferenz: 1043/2542/17

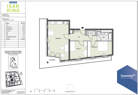
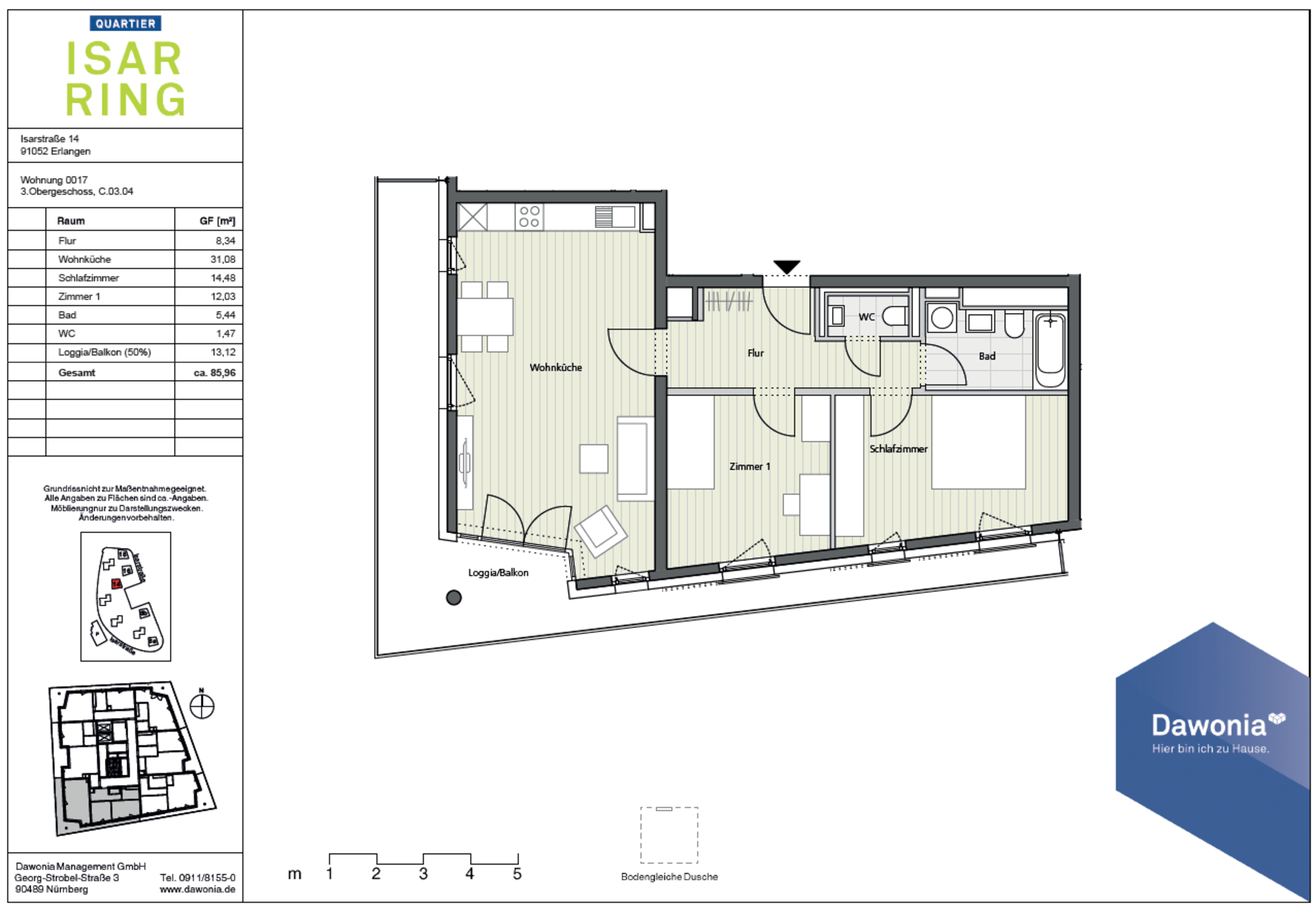
Die moderne 3-Zimmer-Wohnung befindet sich im 3. Obergeschoss eines Neubaus (Fertigstellung Juli 2024) in einer gepflegten Wohnanlage mit Aufzug.

Auf Wunsch kann ein Stellplatz (auch mehrere) in der Tiefgarage unter dem Haus für zusätzlich 65 € mtl. angemietet werden.

  • Wohnfläche ca. : 86 m2
  • Kaltmiete: 1.255,02 €
  • Betriebskosten: 155,00 €
  • Heizkosten: 155,00 €
  • Gesamtmiete: 1.565,02 €
  • Kaution: 3.765,06 €
  • Baujahr: 2024
  • Geschoss: 3
  • Wohnungstyp: Etage
  • Bezugstermin: 01.06.2026
  • Zustand: Gepflegt
  • Energieausweistyp: Bedarf
  • Heizungsart: Zentral
  • Energiekennwert: 56kWh/(m²*a)
  • Energieträger: Fernwärme
  • Effizienzklasse: B
  • Badezimmer: 1
  • Schlafzimmer: 2
  • Aufzug
  • Fahrradraum
  • Anzahl Balkon / Terrasse: 1 / 0
  • Einbauküche
  • Waschmaschinenanschluss
  • Keller
  • Gegensprechanlage: VIDEO
  • Badewanne
  • Gaestewc
  • Fußboden: PARKETT
  • Stellplatzart: Tiefgarage
  • Parkplätze: 1
  • Objekt-Nr: 1043/2542/17-800b7624-4e1d-4b4b-87a8-2392d11283fc